Asking Price

Asking price

€795,000
795,000€ Asking Price
Sale Agreed
4 Bedrooms
2 Bathrooms
26 Threadneedle Road, Salthill, Galway, H91 TW6E

Property Summary

O'Donnellan and Joyce Auctioneers, along with joint agent Colleran Auctioneers are pleased to offer a spacious semi detached home with excellent potential in one of Galway's most sought after addresses.

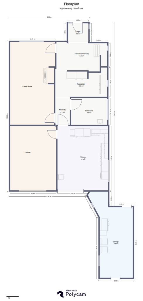
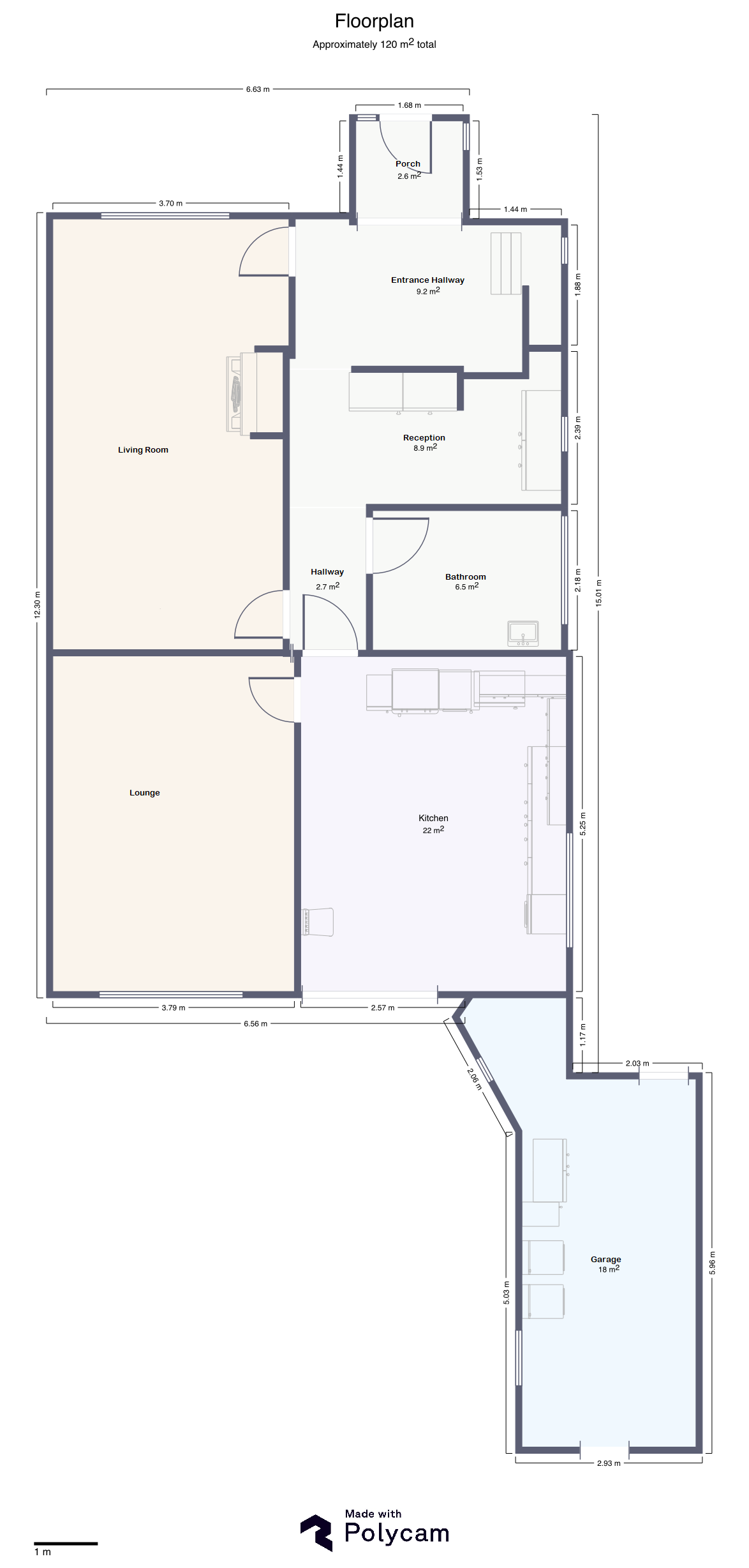
No 26 Threadneedle Road is a large semi detached home comprising of circa 191.4 sqm over two storeys.

Originally constructed in the early 1950's, the home will benefit from refurbishment but offers tremendous potential throughout.

The ground floor consists of large living spaces to the front and back, separate kitchen at the rear of the home downstairs bathroom and a large garage area with side entry.

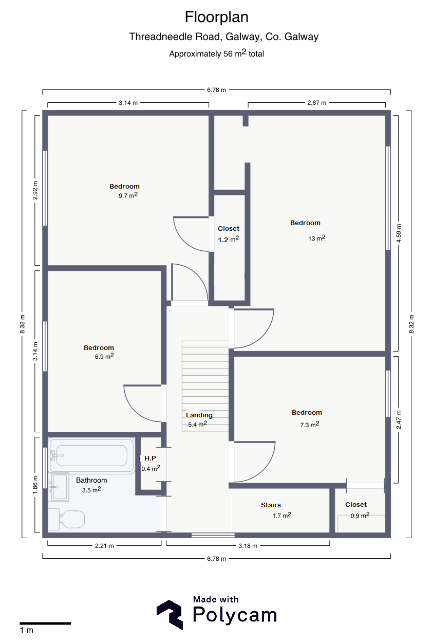
Upstairs consists of four spacious bedrooms, all with fitted storage, and a main family bathroom. Additionally, a large floored attic is accessible via the landing.

The external space is the key feature of 26 Threadneedle Road. The front of the home avails of off street parking, whilst the private rear garden boasts a substantial amount of space with a Westerly aspect.

The location of the home is second to none, perfectly postioned on Threadneedle Road, one of Galway's most prestigious addresses.

The property is just a hop, skip and a jump from the Sallthill Promenade and Blackrock Diving Tower.

Additionally, within walking distance is Salthill Village, Galway Lawn Tennis Club and Galway Golf Club.

The area is ideal for owner occupancy with nearby quality schools, GAA clubs and plenty of outdoor amenities.

No 26 Threadneedle Road is one of the finest properties to come on the market in recent times, it offers excellent potential to create the perfect home with the substantial space on offer both inside and out.

Viewing is highly recommended and guaranteed not to disappoint.

Keep up to-date with NEW PROPERTIES by registering your details on our database

For Further details please contact our office on 091-564212
OFFICE OPENING HOURS - MON TO FRI 9AM TO 5:30PM

Properties can be viewed on our website www.odj.ie

NOTE: These particulars are not to be considered a formal offer. They are for information only and give a general idea of the property. They are not to be taken as forming any part of a resulting contract, nor to be relied upon as statements or representations of fact. Whilst every care is taken in their preparation, neither O’Donnellan & Joyce Auctioneers nor the vendor accept any liability as to their accuracy. Intending purchasers must satisfy themselves by personal inspection or otherwise as to the correctness of these particulars. No person in the employment of O’Donnellan & Joyce Auctioneers has any authority to make or give any representation or warranty whatever in relation to this property.

Property Features

  • Large semi-detached residence
  • Sought after residential location
  • Off-street parking
  • Substantial garden with westerly aspect
  • Excellent potential throughout
  • Moments from Salthill Prom & Blackrock Diving Tower
  • Walking distance to Salthill Village
  • Well serviced for local amenties, transport links, leisure facilities & quality schools nearby
DESCRIPTION

Property Summary

O'Donnellan and Joyce Auctioneers, along with joint agent Colleran Auctioneers are pleased to offer a spacious semi detached home with excellent potential in one of Galway's most sought after addresses.

No 26 Threadneedle Road is a large semi detached home comprising of circa 191.4 sqm over two storeys.

Originally constructed in the early 1950's, the home will benefit from refurbishment but offers tremendous potential throughout.

The ground floor consists of large living spaces to the front and back, separate kitchen at the rear of the home downstairs bathroom and a large garage area with side entry.

Upstairs consists of four spacious bedrooms, all with fitted storage, and a main family bathroom. Additionally, a large floored attic is accessible via the landing.

The external space is the key feature of 26 Threadneedle Road. The front of the home avails of off street parking, whilst the private rear garden boasts a substantial amount of space with a Westerly aspect.

The location of the home is second to none, perfectly postioned on Threadneedle Road, one of Galway's most prestigious addresses.

The property is just a hop, skip and a jump from the Sallthill Promenade and Blackrock Diving Tower.

Additionally, within walking distance is Salthill Village, Galway Lawn Tennis Club and Galway Golf Club.

The area is ideal for owner occupancy with nearby quality schools, GAA clubs and plenty of outdoor amenities.

No 26 Threadneedle Road is one of the finest properties to come on the market in recent times, it offers excellent potential to create the perfect home with the substantial space on offer both inside and out.

Viewing is highly recommended and guaranteed not to disappoint.

Keep up to-date with NEW PROPERTIES by registering your details on our database

For Further details please contact our office on 091-564212
OFFICE OPENING HOURS - MON TO FRI 9AM TO 5:30PM

Properties can be viewed on our website www.odj.ie

NOTE: These particulars are not to be considered a formal offer. They are for information only and give a general idea of the property. They are not to be taken as forming any part of a resulting contract, nor to be relied upon as statements or representations of fact. Whilst every care is taken in their preparation, neither O’Donnellan & Joyce Auctioneers nor the vendor accept any liability as to their accuracy. Intending purchasers must satisfy themselves by personal inspection or otherwise as to the correctness of these particulars. No person in the employment of O’Donnellan & Joyce Auctioneers has any authority to make or give any representation or warranty whatever in relation to this property.

Mortgage Calculator

Contact Us

Colm O'Donnellan
Managing Director

Next Steps

Call the office:

RECOMMENDED FOR YOU

YOU MAY ALSO LIKE

Chapelfields, Caltra, Ballinasloe, Co Galway, H53K446

& 161 Corrib Park, Newcastle, Galway, H91 RKK2

& 161 Corrib Park, Newcastle, Galway, H91 RKK2