Asking Price

Asking price

€350,000
350,000€ Asking Price
Sale Agreed
2 Bedrooms
2 Bathrooms
2 Sailin, Wellpark, Galway City, H91NP49

Property Summary

O'Donnellan & Joyce Auctioneers are pleased to present a spacious two bed duplex apartment in the popular Sailin development.

Situated on the cusp of Galway City Centre & in the popular Wellpark area, the property will suit a variety of purchasers.

Originally constructed in 2002 by O'Malley's Construction, Sailin is a sought-after development consisting of a variety of apartments & townhouses whilst offering well maintained & landscaped communal space.

No 2 Sailin, provides enviable views over Lough Atalia and the communal gardens.

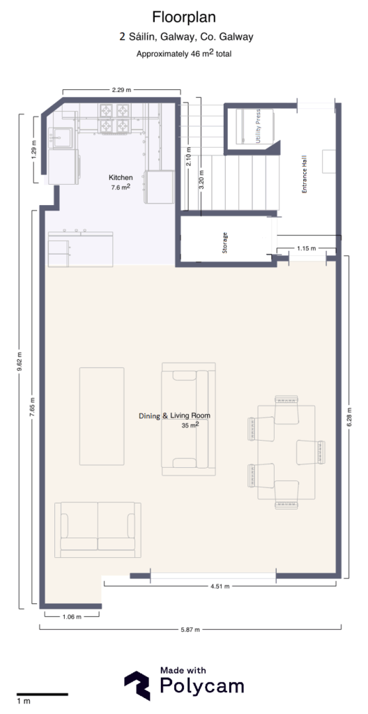
The property measures approximately 108.9 sq.m over two storeys and is presented in turnkey condition ready for immediate occupancy.

Comprising of an entrance hall, a utility press in hallway and then leading into a spacious open plan kitchen, dining and living area with patio doors to communal garden.

Upstairs the property provides a main bathroom and two double bedrooms with wooden flooring and built in wardrobes, with the master bedroom en suite.

Sailin is adjacent to Wellpark Retail Centre offering all necessary amenities on your doorstep, whilst Galway City Centre is just a short walk away.

Additionally, Sailin is within proximity to several prominent landmarks including ATU College, Bon Secours, Terryland Retail Park, Eye Cinema, Huntsman Inn, and the Dexacom Stadium on College Road.

No. 2 Sailin is ideal for a variety of purchasers due to the spacious accommodation, quality condition, ample external space & excellent location.

Viewing is highly recommended.

Keep up to-date with NEW PROPERTIES by registering your details on our database

For Further details please contact our office on 091-564212
OFFICE OPENING HOURS - MON TO FRI 9AM TO 5:30PM

Properties can be viewed on our website www.odj.ie

NOTE: These particulars are not to be considered a formal offer. They are for information only and give a general idea of the property. They are not to be taken as forming any part of a resulting contract, nor to be relied upon as statements or representations of fact. Whilst every care is taken in their preparation, neither O’Donnellan & Joyce Auctioneers nor the vendor accept any liability as to their accuracy. Intending purchasers must satisfy themselves by personal inspection or otherwise as to the correctness of these particulars. No person in the employment of O’Donnellan & Joyce Auctioneers has any authority to make or give any representation or warranty whatever in relation to this property.

Property Features

  • Two bed apartment over two storeys
  • Enviable views overlooking Lough Atalia
  • Presented in turnkey condition
  • Suitable for a variety of purchasers
  • Gold Shield Electric Storage Heating
  • Open plan living with access to patio area
  • Secure complex with communal parking
  • Galway Property Mgt - circa €2529.96 per annum
  • Adjacent to Wellpark Retail Pk, Eye Cinema & G Hotel
  • Close to Galway City Centre & ATU College Campus
DESCRIPTION

Property Summary

O'Donnellan & Joyce Auctioneers are pleased to present a spacious two bed duplex apartment in the popular Sailin development.

Situated on the cusp of Galway City Centre & in the popular Wellpark area, the property will suit a variety of purchasers.

Originally constructed in 2002 by O'Malley's Construction, Sailin is a sought-after development consisting of a variety of apartments & townhouses whilst offering well maintained & landscaped communal space.

No 2 Sailin, provides enviable views over Lough Atalia and the communal gardens.

The property measures approximately 108.9 sq.m over two storeys and is presented in turnkey condition ready for immediate occupancy.

Comprising of an entrance hall, a utility press in hallway and then leading into a spacious open plan kitchen, dining and living area with patio doors to communal garden.

Upstairs the property provides a main bathroom and two double bedrooms with wooden flooring and built in wardrobes, with the master bedroom en suite.

Sailin is adjacent to Wellpark Retail Centre offering all necessary amenities on your doorstep, whilst Galway City Centre is just a short walk away.

Additionally, Sailin is within proximity to several prominent landmarks including ATU College, Bon Secours, Terryland Retail Park, Eye Cinema, Huntsman Inn, and the Dexacom Stadium on College Road.

No. 2 Sailin is ideal for a variety of purchasers due to the spacious accommodation, quality condition, ample external space & excellent location.

Viewing is highly recommended.

Keep up to-date with NEW PROPERTIES by registering your details on our database

For Further details please contact our office on 091-564212
OFFICE OPENING HOURS - MON TO FRI 9AM TO 5:30PM

Properties can be viewed on our website www.odj.ie

NOTE: These particulars are not to be considered a formal offer. They are for information only and give a general idea of the property. They are not to be taken as forming any part of a resulting contract, nor to be relied upon as statements or representations of fact. Whilst every care is taken in their preparation, neither O’Donnellan & Joyce Auctioneers nor the vendor accept any liability as to their accuracy. Intending purchasers must satisfy themselves by personal inspection or otherwise as to the correctness of these particulars. No person in the employment of O’Donnellan & Joyce Auctioneers has any authority to make or give any representation or warranty whatever in relation to this property.

Mortgage Calculator

Contact Us

Jamie Costello
Lettings & Sales Agent

Next Steps

Call the office:

RECOMMENDED FOR YOU

YOU MAY ALSO LIKE

Dublin Road, Renmore, Galway, H91 XWX8

Castlelawn Heights, Headford Road, Galway, H91D68X

Baily Point, Upper Salthill, Salthill, Galway, H91 ND43