Asking Price

Asking price

€325,000
325,000€ Asking Price
For Sale
3 Bedrooms
2 Bathrooms
135 Fearann Ri, Doughiska, Galway City, H91 XY6P

Property Summary

O'Donnellan & Joyce auctioneers present a three-bed end of terrace property to the market at Fearann Rí, Doughiska on the East side of Galway City.

The development was constructed in the early 2000's and is comprised of a mix of semi-detached and terraced houses. The area benefits from a variety of services & amenities.

Ideally situated within moments of the Galway Clinic & Merlin Park Hospital, Boston Scientific, Merit Medical, Creganna and a host of shops such as Aldi, Iceland, and the Briarhill shopping centre.

Also located in the area are several quality schools and sporting facilities with football & astroturf pitches, basketball & tennis courts all nearby.

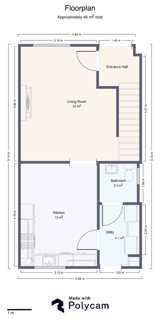
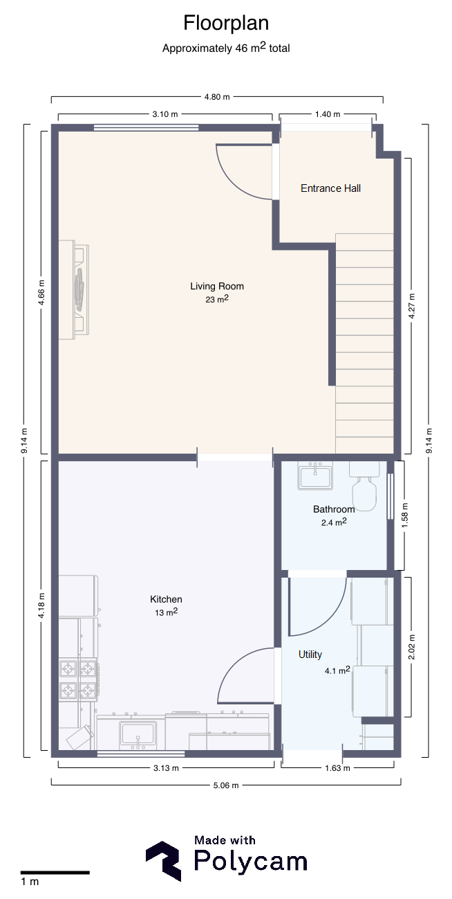
No 135 Fearann Ri is comprised of an entrance hall, lounge room with fireplace and an open plan kitchen & dining. A guest WC and utility room completes the ground floor.

Upstairs the property provides a main bathroom and three bedrooms, with the master en suite.

Externally, there is ample parking to the front, with a gated side entrance leading to the rear garden.

Frequent transport links notably allow easy access to Galway City & neighbouring suburbs, whilst there's easy access to both the M6 Galway-Dublin motorway & M18 Galway-Limerick motorway.

The property would be the ideal owner occupier residence or investment, due to its ideal location and proximity to Galway city and its surrounding business parks and industrial estates.

Viewing is recommended and guaranteed not to disappoint.

Keep up to-date with NEW PROPERTIES by registering your details on our database

For Further details please contact our office on 091-564212
OFFICE OPENING HOURS - MON TO FRI 9AM TO 5:30PM

Properties can be viewed on our website www.odj.ie

NOTE: These particulars are not to be considered a formal offer. They are for information only and give a general idea of the property. They are not to be taken as forming any part of a resulting contract, nor to be relied upon as statements or representations of fact. Whilst every care is taken in their preparation, neither O’Donnellan & Joyce Auctioneers nor the vendor accept any liability as to their accuracy. Intending purchasers must satisfy themselves by personal inspection or otherwise as to the correctness of these particulars. No person in the employment of O’Donnellan & Joyce Auctioneers has any authority to make or give any representation or warranty whatever in relation to this property.

Full Details

O'Donnellan & Joyce auctioneers present a three bed end of terrace property to the market at Fearann Rí, Doughiska on the East side of Galway City.

The development was constructed in the early 2000's and and is comprised of a mix of semi detached and terraced houses. The area benefits from a variety of services & amenities.

Ideally situated within moments of the Galway Clinic & Merlin Park Hospital, Boston Scientific, Merit Medical, Creganna and a host of shops such as Aldi, Iceland and the Briarhill shopping centre.

Also located in the area are several quality schools and sporting facilities with football & astroturf pitches, basketball & tennis courts all nearby.

No 135 Fearann Ri is comprised of an entrance hall, lounge room with fireplace and an open plan kitchen & dining. A guest WC and utility room completes the ground floor.

Upstairs the property provides a main bathroom and three bedrooms, with the master en suite.

Externally, there is ample parking to the front, with a gated side entrance leading to the rear garden.

Frequent transport links notably allow easy access to Galway City & neighbouring suburbs, whilst there's easy access to both the M6 Galway-Dublin motorway & M18 Galway-Limerick motorway.

The property would be the ideal owner occupier residence or investment, due to its ideal location and close proximity to Galway city and its surrounding business parks and industrial estates.

Viewing is recommended and guaranteed not to disappoint.

Property Features

  • Three bed end of terrace – circa 93.4 sqm
  • Close Merlin Woods NS & Merlin College
  • Walking distance to ATU College & Campus
  • Quick access to Galway City and Oranmore
  • Serviced by several shops, cafes, and hotels
  • Ample green spaces, community facilities & schools
  • Quality transport links via M6 & M18 motorways
  • Daily bus service to & from Galway city located nearby
  • Close to several major employment hubs and hospitals
  • Easy access to Bon Secours, Galway Clinic & Merlin Park
DESCRIPTION

Property Summary

O'Donnellan & Joyce auctioneers present a three-bed end of terrace property to the market at Fearann Rí, Doughiska on the East side of Galway City.

The development was constructed in the early 2000's and is comprised of a mix of semi-detached and terraced houses. The area benefits from a variety of services & amenities.

Ideally situated within moments of the Galway Clinic & Merlin Park Hospital, Boston Scientific, Merit Medical, Creganna and a host of shops such as Aldi, Iceland, and the Briarhill shopping centre.

Also located in the area are several quality schools and sporting facilities with football & astroturf pitches, basketball & tennis courts all nearby.

No 135 Fearann Ri is comprised of an entrance hall, lounge room with fireplace and an open plan kitchen & dining. A guest WC and utility room completes the ground floor.

Upstairs the property provides a main bathroom and three bedrooms, with the master en suite.

Externally, there is ample parking to the front, with a gated side entrance leading to the rear garden.

Frequent transport links notably allow easy access to Galway City & neighbouring suburbs, whilst there's easy access to both the M6 Galway-Dublin motorway & M18 Galway-Limerick motorway.

The property would be the ideal owner occupier residence or investment, due to its ideal location and proximity to Galway city and its surrounding business parks and industrial estates.

Viewing is recommended and guaranteed not to disappoint.

Keep up to-date with NEW PROPERTIES by registering your details on our database

For Further details please contact our office on 091-564212
OFFICE OPENING HOURS - MON TO FRI 9AM TO 5:30PM

Properties can be viewed on our website www.odj.ie

NOTE: These particulars are not to be considered a formal offer. They are for information only and give a general idea of the property. They are not to be taken as forming any part of a resulting contract, nor to be relied upon as statements or representations of fact. Whilst every care is taken in their preparation, neither O’Donnellan & Joyce Auctioneers nor the vendor accept any liability as to their accuracy. Intending purchasers must satisfy themselves by personal inspection or otherwise as to the correctness of these particulars. No person in the employment of O’Donnellan & Joyce Auctioneers has any authority to make or give any representation or warranty whatever in relation to this property.

Mortgage Calculator

Contact Us

Jamie Costello
Lettings & Sales Agent

Next Steps

Call the office:

RECOMMENDED FOR YOU

YOU MAY ALSO LIKE

Chapelfields, Caltra, Ballinasloe, Co Galway, H53K446

& 161 Corrib Park, Newcastle, Galway, H91 RKK2

& 161 Corrib Park, Newcastle, Galway, H91 RKK2