Asking Price

Asking price

€395,000
395,000€ Asking Price
For Sale
3 Bedrooms
2 Bathrooms
88 Dangan Heights,, Newcastle,, Galway., H91 VCV0

Property Summary

O'Donnellan & Joyce are pleased to offer for sale a delightful three bed semi detached in the popular development of Dangan Heights, Newcastle, Galway.

Constructed in the mid 1980's by premier builders O’Malley Construction, the estate comprises a mixture of semi detached & detached homes.

Dangan Heights is a popular development with ample communal green space with mature trees and shrubberies throughout.

The development is superbly positioned between Galway City & the village of Moycullen, with both providing convenient access to a range of amenities, shops, and cultural attractions.

There are many schools to choose from within Galway City, but the nearest to this property are St James NS in Bushypark and Galway Educate together in Newcastle.

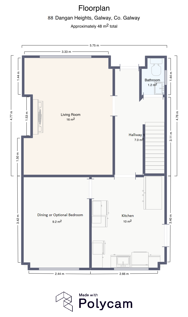
No 88 Dangan Heights is presented in turnkey condition and is ready for immediate occupancy. The accommodation is comprised of an entrance hall, a living room with feature fireplace, a kitchen, a dining room or optional bedroom and a guest WC.

Upstairs the property contains a main bathroom and three bedrooms, all of which offer built in wardrobes.

Externally the property provides ample off street parking, a front garden and side access to the private rear garden.

Within walking distance of the IDA business Park and a mere 1.5 km from the University of Galway and 1.7 km from University Hospital Galway (UCHG), the area has everything you could want in terms of lifestyle and location.

Also nearby is the Dangan Park & Sportsgrounds which runs along the Corrib River, providing an abundance of outdoor amenities.

No.88 Dangan Heights would prove to be the ideal owner occupier residence, first time buyer property or a gilt edged investment with guaranteed return due to its superb location.

Viewing is highly recommended.

Keep up to-date with NEW PROPERTIES by registering your details on our database

For Further details please contact our office on 091-564212
OFFICE OPENING HOURS - MON TO FRI 9AM TO 5:30PM

Properties can be viewed on our website www.odj.ie

NOTE: These particulars are not to be considered a formal offer. They are for information only and give a general idea of the property. They are not to be taken as forming any part of a resulting contract, nor to be relied upon as statements or representations of fact. Whilst every care is taken in their preparation, neither O’Donnellan & Joyce Auctioneers nor the vendor accept any liability as to their accuracy. Intending purchasers must satisfy themselves by personal inspection or otherwise as to the correctness of these particulars. No person in the employment of O’Donnellan & Joyce Auctioneers has any authority to make or give any representation or warranty whatever in relation to this property.

Property Features

  • Delightful three bed semi detached
  • Popular residential location of Dangan
  • Quick access Galway City Centre & Moycullen
  • Ample off street parking & private rear garden
  • Walking distance of IDA Park & Univeristy Campus
  • Across from Dangan Park & Sportsground
  • Quality local schools in Bushypark & Newcastle
  • Well serviced by local amenities & transport links
  • Ideal owner occupier/FTB property
DESCRIPTION

Property Summary

O'Donnellan & Joyce are pleased to offer for sale a delightful three bed semi detached in the popular development of Dangan Heights, Newcastle, Galway.

Constructed in the mid 1980's by premier builders O’Malley Construction, the estate comprises a mixture of semi detached & detached homes.

Dangan Heights is a popular development with ample communal green space with mature trees and shrubberies throughout.

The development is superbly positioned between Galway City & the village of Moycullen, with both providing convenient access to a range of amenities, shops, and cultural attractions.

There are many schools to choose from within Galway City, but the nearest to this property are St James NS in Bushypark and Galway Educate together in Newcastle.

No 88 Dangan Heights is presented in turnkey condition and is ready for immediate occupancy. The accommodation is comprised of an entrance hall, a living room with feature fireplace, a kitchen, a dining room or optional bedroom and a guest WC.

Upstairs the property contains a main bathroom and three bedrooms, all of which offer built in wardrobes.

Externally the property provides ample off street parking, a front garden and side access to the private rear garden.

Within walking distance of the IDA business Park and a mere 1.5 km from the University of Galway and 1.7 km from University Hospital Galway (UCHG), the area has everything you could want in terms of lifestyle and location.

Also nearby is the Dangan Park & Sportsgrounds which runs along the Corrib River, providing an abundance of outdoor amenities.

No.88 Dangan Heights would prove to be the ideal owner occupier residence, first time buyer property or a gilt edged investment with guaranteed return due to its superb location.

Viewing is highly recommended.

Keep up to-date with NEW PROPERTIES by registering your details on our database

For Further details please contact our office on 091-564212
OFFICE OPENING HOURS - MON TO FRI 9AM TO 5:30PM

Properties can be viewed on our website www.odj.ie

NOTE: These particulars are not to be considered a formal offer. They are for information only and give a general idea of the property. They are not to be taken as forming any part of a resulting contract, nor to be relied upon as statements or representations of fact. Whilst every care is taken in their preparation, neither O’Donnellan & Joyce Auctioneers nor the vendor accept any liability as to their accuracy. Intending purchasers must satisfy themselves by personal inspection or otherwise as to the correctness of these particulars. No person in the employment of O’Donnellan & Joyce Auctioneers has any authority to make or give any representation or warranty whatever in relation to this property.

Mortgage Calculator

Contact Us

Robyn Commons
Sales & Lettings Agent

Next Steps

Call the office:

RECOMMENDED FOR YOU

YOU MAY ALSO LIKE

Dublin Road, Renmore, Galway, H91 XWX8

Castlelawn Heights, Headford Road, Galway, H91D68X

Baily Point, Upper Salthill, Salthill, Galway, H91 ND43